Western Academy of Beijing – High School Science Laboratories
Studio Vapore’s design of the High School Science Laboratories at the Western Academy of Beijing revitalizes traditional learning spaces, fostering inquiry-based education through flexible layouts and optimized lighting.
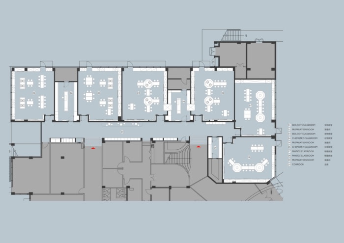
Studio Vapore designed the Science Laboratories for the Western Academy of Beijing as part of a broader, long-term renovation strategy developed in close collaboration with the school. The laboratories form one component of an ongoing partnership, supporting the school’s gradual transformation of existing facilities to align with contemporary educational approaches.
The design rethinks the traditional school laboratory, moving away from rigid, teacher-centered layouts toward flexible environments that encourage inquiry-based learning. A key focus of the project is lighting: bright, evenly distributed illumination creates the clarity and precision associated with professional laboratories. Custom feature lamps, inspired by the form and presence of laboratory fume hoods, reinforce this atmosphere and help students feel immersed in a real scientific working environment.
The laboratories accommodate multiple scientific disciplines while remaining adaptable to different teaching styles. Large whiteboard surfaces, pegboards, and felt wall panels allow spaces to be easily reconfigured for demonstrations, group work, or independent study, supporting both visual communication and acoustic comfort. Clear spatial organization and generous circulation enable smooth transitions between activities.
Prep rooms and support spaces are carefully integrated to ensure efficient workflows for teachers and technicians, while maintaining safety and clarity for students. Material choices balance durability with warmth, ensuring the spaces can withstand intensive daily use while remaining welcoming.
Developed through continuous dialogue with educators and consultants, the laboratories combine technical performance with flexibility and clarity, creating an environment that supports scientific learning while inspiring curiosity and confidence.
Design: Studio Vapore
Design Team: Erica Borsa, Yumi Zhang
Photography: Vincent Wu













Now editing content for LinkedIn.