Iowa Conservatory
Neumann Monson Architects revitalized the historic Brewery Square in Iowa City for the Iowa Conservatory, harmonizing past craftsmanship with modern arts education needs through innovative design and budget-conscious renovations.
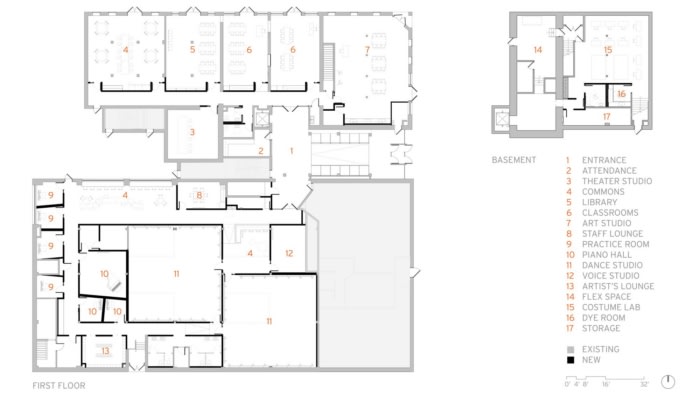
The renovation of a historic building for a prestigious performing arts high school breathes new life into the spaces within the artistically vibrant Northside neighborhood of Iowa City. Specializing in intensive arts education across dance, theatre arts, music, design, and production, the school faced the challenge of inflation and high post-pandemic construction costs. Their solution was the renovation and full repurposing of the historic Brewery Square building—a blend of an 1800s brewery and an early 1900s printing warehouse—on a modest budget of $110 per square foot.
The historical significance of the structures provided the design team a unique opportunity to reveal the original craftsmanship and materials. Exposed steel, brick, and wood from the existing buildings now serve as a textural backdrop to contemporary architectural elements.
The design concept addressed two primary challenges: spatial organization and structural limitations. Common areas and performance rooms on the main level are strategically arranged for optimal proximity to academic spaces. Located beneath existing offices, quieter classrooms were located on the schools north end, while noisier music and dance studios are located in the one-story volume to the south.
The project capitalized on the large open bays and existing skylights of the historic printing warehouse. Structural modifications included altering the 20-foot grid by removing two columns, thereby creating space for two expansive 40’ x 40’ dance studios.
Strategically placed wall graphics celebrate the school’s various departments and feature quotes from luminaries in each field. The existing incandescent and fluorescent lighting has been replaced with minimalistic LED fixtures, and natural light is maximized through the use of existing skylights and glass block walls. Reflecting the school’s commitment to equity, the design includes nongendered restrooms on the performance side of the facility, a pioneering feature for downtown Iowa City.
Design: Neumann Monson Architects
Structural Engineer: M2B
Mechanical Design/Build: Mechanical Service Inc
Electrical Design/Build: Merit Electrical
Photography: Cameron Campbell Integrated Studio















Now editing content for LinkedIn.